Propose interior and furniture layout plan details for office building dwg file
Description
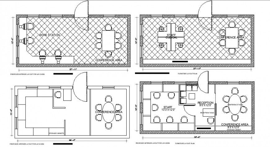
Propose interior and furniture layout plan details for office building that includes a detailed view of reception area with waiting area and cabin bottom false ceiling, computer lab and bottom of grid ceiling, counselling room and library and conference room details, manager cabin and meeting room with furniture layout plan and interior details and much more of office details.
File Type:
DWG
File Size:
53 KB
Category::
Interior Design
Sub Category::
Modern Office Interior Design
type:
Gold

Uploaded by:
Eiz
Luna

