Column installation plan and beam structure detail 2d view CAD construction block autocad file
Description
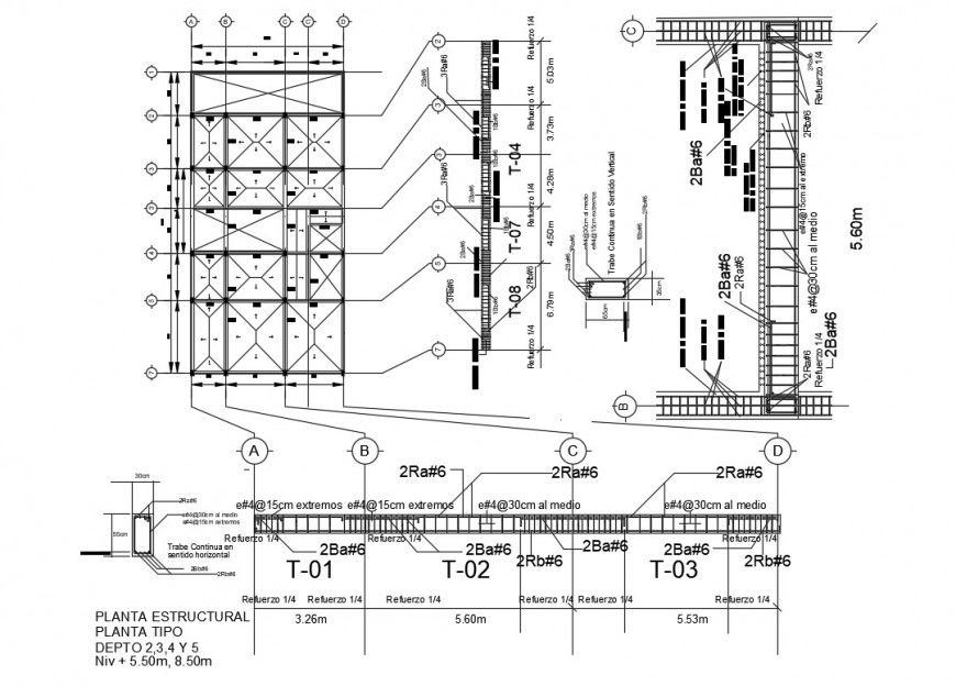
Column installation plan and beam structure detail 2d view CAD construction block autocad file, column plan detail, column and beam detail, reinforcement detail in tension and compression zone, hook up and bent up bars detail, effective cover detail, bar dimension detail, main and distribution bars detail, reinforced concrete cement (RCC) structure, etc.
File Type:
DWG
File Size:
259 KB
Category::
Construction
Sub Category::
Reinforced Cement Concrete Details
type:
Gold

Uploaded by:
Eiz
Luna

