Structure details of roof, doors and windows installation dwg file
Description
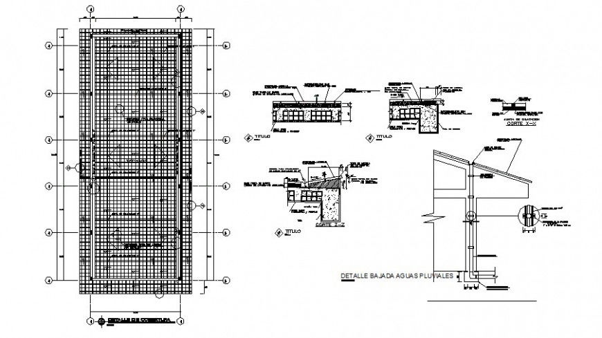
Structure details of roof, doors and windows installation that includes a detailed view of previously linked support, multilayer insulation panel, rubber shock absorber element, galvanized profile for anchorage, acoustic sandwich. (see detail), dimensions details, memory of materials, concrete details, cuts and joints details, reinforcement details, water proofing details and much more of structure details.

Uploaded by:
Eiz
Luna
