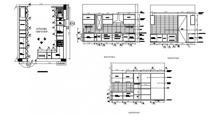
Working plan and elevation of kitchen area 2d view autocad file
Description
Working plan and elevation of kitchen area 2d view autocad file, wall and flooring detail, platform detail, dimension detail, kitchen appliances and furnitures detail, kitchen interior dimension detail, cabinet and shelves detail, racks and shelves detail, front elevation detail, kitchen sink detail, gas-stove detail, exhauster chimney detail, door and window detail, etc.
File Type:
DWG
File Size:
125 KB
Category::
Construction
Sub Category::
Kitchen And Remodeling Details
type:
Gold

Uploaded by:
Eiz
Luna

