Ware house detail lighting layout in dwg AutoCAD file.
Description
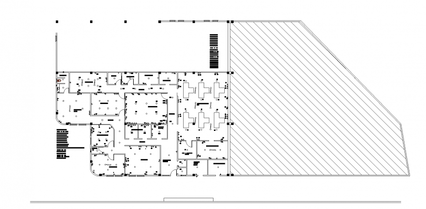
Ware house detail lighting layout in dwg AutoCAD file. This file includes the detail lighting layout of the ware house with fan and light detail.

Uploaded by:
Eiz
Luna
Ware house detail lighting layout in dwg AutoCAD file. This file includes the detail lighting layout of the ware house with fan and light detail.

Uploaded by:
Luna