Composite Column Design CAD File

Composite Column Design CAD File
Profile

Uploaded by:

Priyanka

Patel

Description
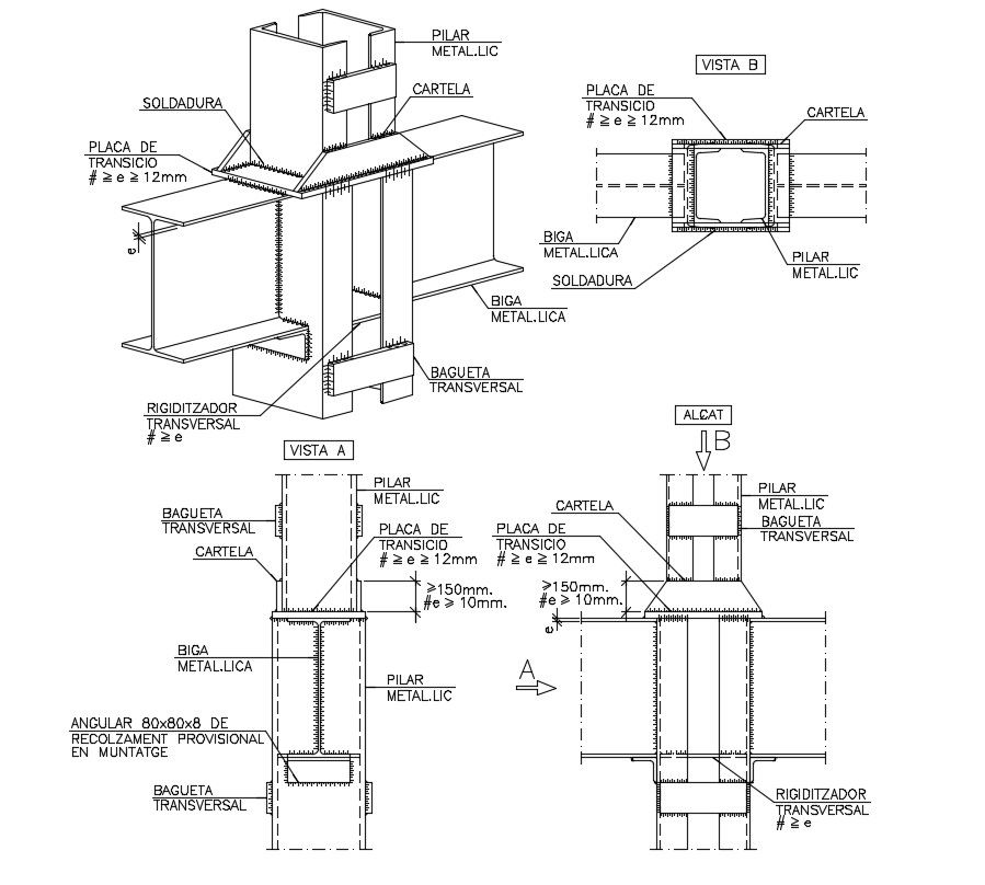
Download CAD drawing details of steel column design which shows angle section details along with I-angle section details, c-channel section details, and other unit details.
Profile

Uploaded by:

Priyanka

Patel

find Latest

Related Files

WhatsApp Chat