LOGIN
HOME
CATEGORIES
UPLOAD FILE
PRICING
HOUSE PLAN
ABOUT US
CONTACT US
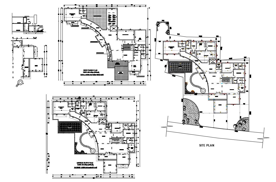
Residential House Floor plan of DWG file
Home
Categories
Architecture
Bungalow House Design
Residential House Floor plan of DWG file
Uploaded by:
Priyanka
Patel
View Profile
View Profile
Description
Download a detailed residential house floor plan in DWG format. Perfect for architects, designers, and CAD professionals working on home projects.
File Type:
Autocad
File Size:
993 KB
Category::
Architecture
Sub Category::
Bungalow House Design
type:
Gold
Uploaded by:
Priyanka
Patel
View Profile
Download
Add to libary
find Latest
Related
Files