House third floor plan details with framing structure dwg file
Description
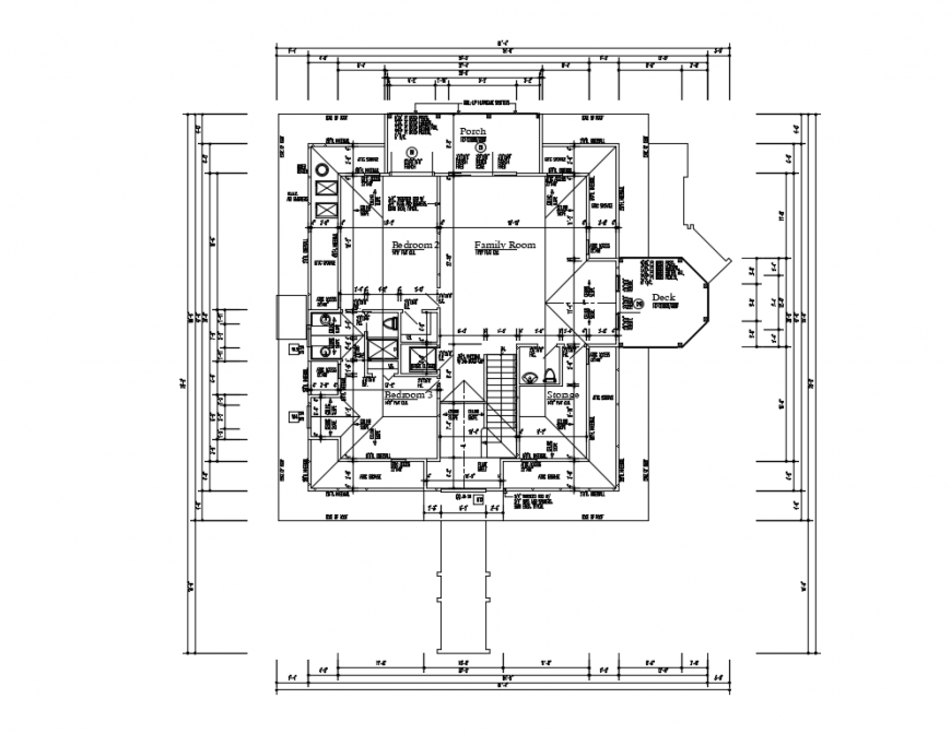
House third floor plan details with framing structure that includes a detailed view of duck, porch, nuts and washers, main entry house door, drawing room, living room, family hall, kitchen, dining area, indoor staircases, laundry area, balcony, bedroom, master bedroom, toilets and bathroom, indoor doors, furniture details, wood posts, joints, decking, grider pre-engineering, steel pipe column, play joints, existing floor joints, knee wall, steel pipe column, beam schedule and much more of house project.
Uploaded by:
Eiz
Luna

