Multi-family residential apartment building first, second and typical floor plan details dwg file
Description
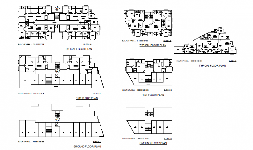
Multi-family residential apartment building first, second and typical floor plan details that includes a detailed view of multiple housing main entry house door, drawing room, living room, family hall, kitchen, dining area, indoor staircases, laundry area, balcony, bedroom, master bedroom, toilets and bathroom, indoor doors, furniture details and much more of apartment building details.
Uploaded by:
Eiz
Luna
