LOGIN
HOME
CATEGORIES
UPLOAD FILE
PRICING
HOUSE PLAN
ABOUT US
CONTACT US
3 bhk AutoCAD File
Home
Categories
Architecture
House Plan
3 bhk AutoCAD File
Uploaded by:
Poonam
View Profile
View Profile
Description
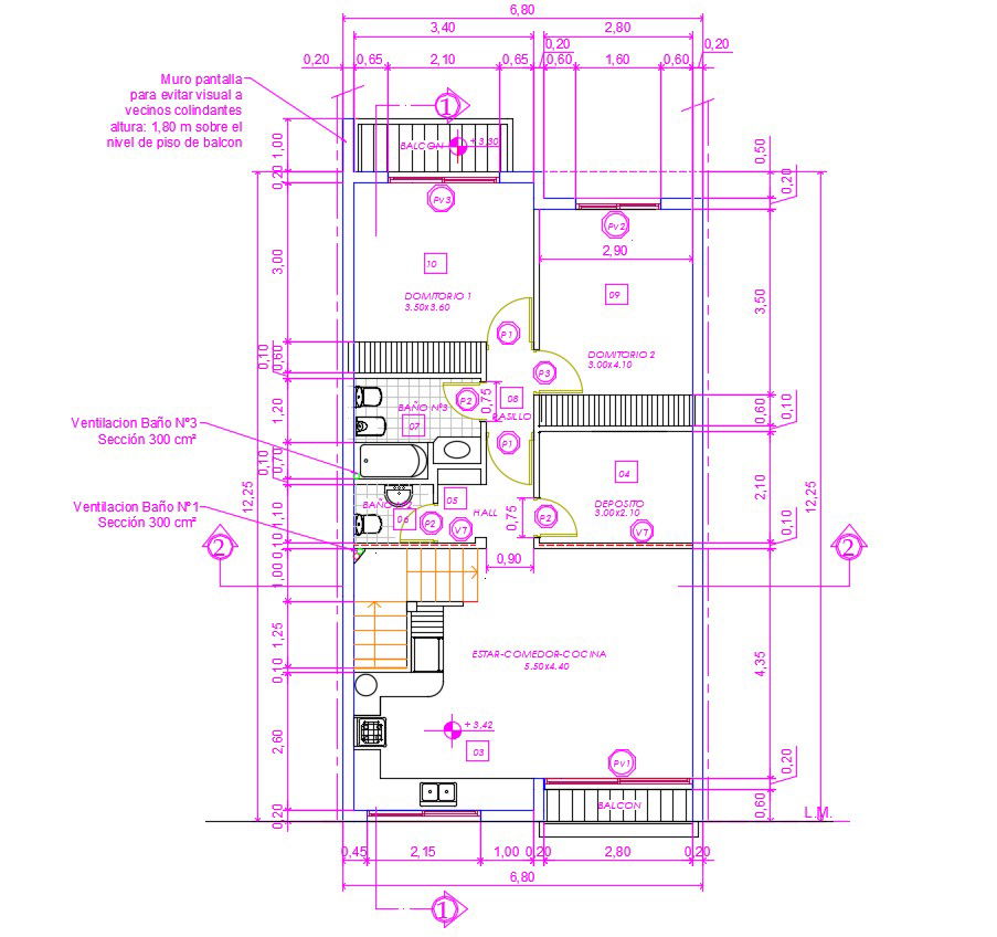
3 bedroom house CAD plan which includes kitchen, drawing room, balcony. Rooms individual dimensions are provided. Section line are given along with the dimension hidden line.
File Type:
DWG
File Size:
125 KB
Category::
Architecture
Sub Category::
House Plan
type:
Gold
Uploaded by:
Poonam
View Profile
Download
Add to libary
find Latest
Related
Files