LOGIN
HOME
CATEGORIES
UPLOAD FILE
PRICING
HOUSE PLAN
ABOUT US
CONTACT US
Fire Water Tank DWG File
Home
Categories
Architecture
Corporate Building
Fire Water Tank DWG File
Uploaded by:
Komal
View Profile
View Profile
Description
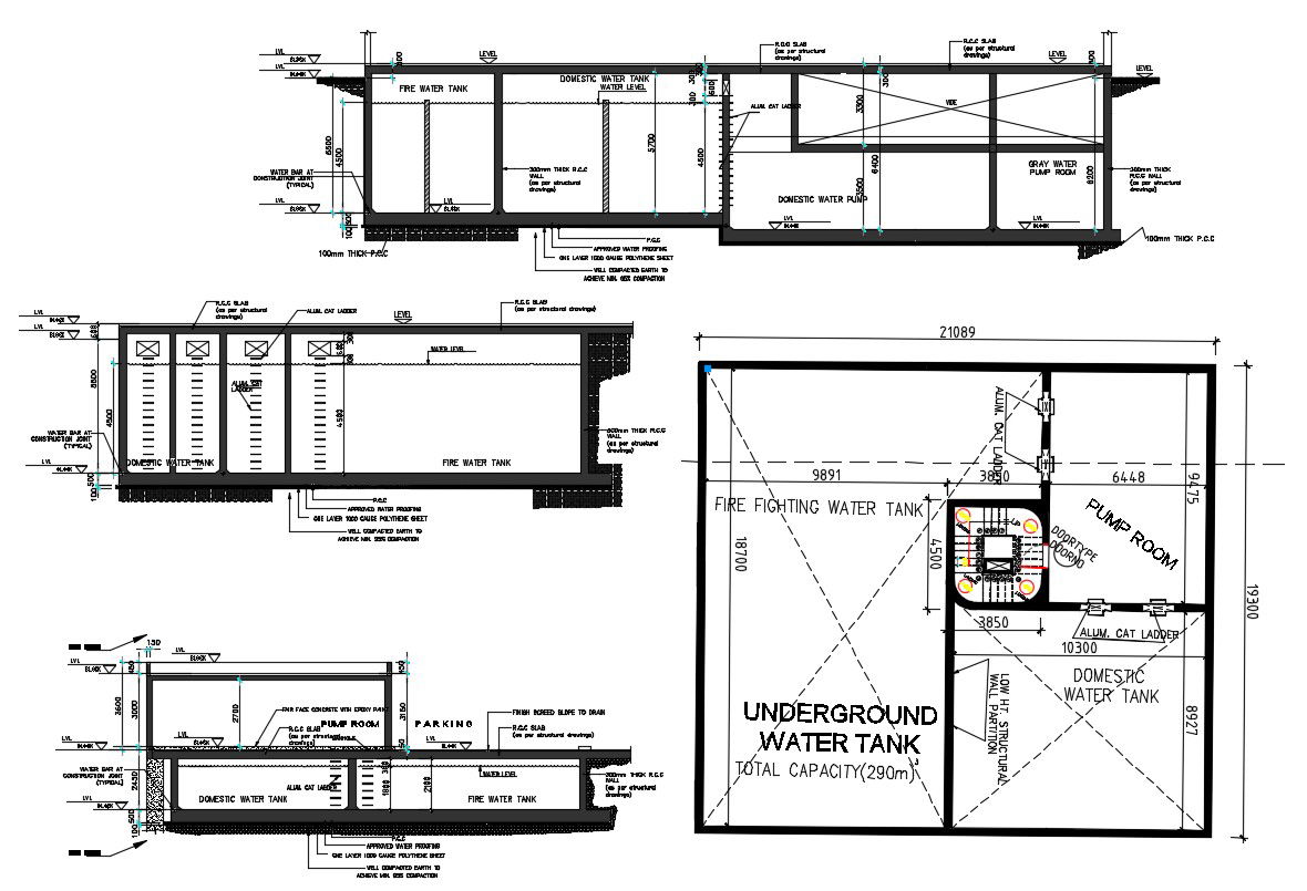
Fire Water Tank DWG File includes layout plan and section plan shows underground water tank, pump room, fire fitting water tank, and domestic water tank.
File Type:
DWG
File Size:
23 MB
Category::
Architecture
Sub Category::
Corporate Building
type:
Gold
Uploaded by:
Komal
View Profile
Download
Add to libary
find Latest
Related
Files