LOGIN
HOME
CATEGORIES
UPLOAD FILE
PRICING
HOUSE PLAN
ABOUT US
CONTACT US
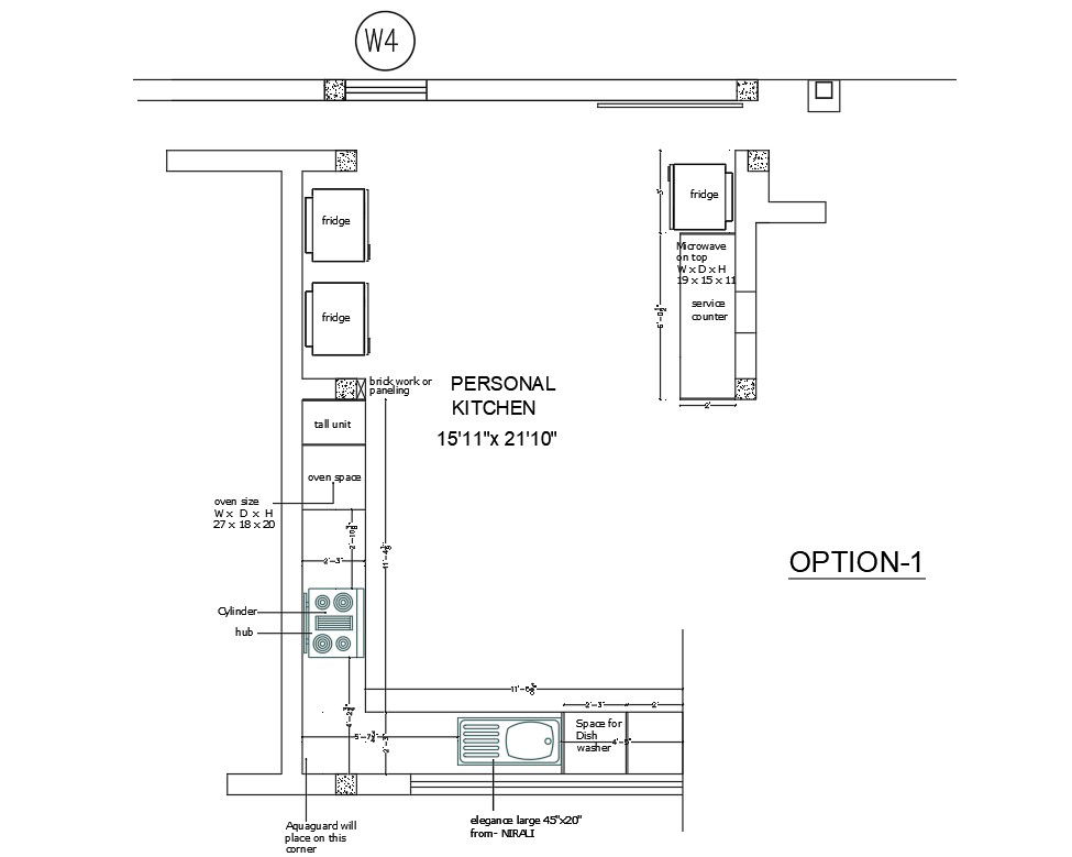
Personal Kitchen Detail
Home
Categories
Interior Design
Kitchen Interiors
Personal Kitchen Detail
Uploaded by:
Albert
stroy
View Profile
View Profile
Description
Modern design of kitchen detail about cupboard, cabinet door, solid wooden panel, gas & fridge storage, dining table also detailing.
File Type:
Autocad
File Size:
42 KB
Category::
Interior Design
Sub Category::
Kitchen Interiors
type:
Gold
Uploaded by:
Albert
stroy
View Profile
Download
Add to libary
find Latest
Related
Files