LOGIN
HOME
CATEGORIES
UPLOAD FILE
PRICING
HOUSE PLAN
ABOUT US
CONTACT US
Room elevation Plan CAD Drawing
Home
Categories
Architecture
Corporate Building
Room elevation Plan CAD Drawing
Uploaded by:
Jiya
View Profile
View Profile
Description
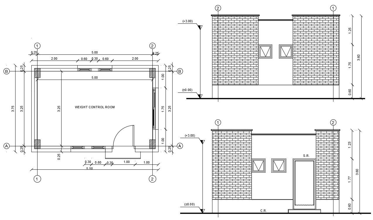
CAD plan of weight control room plan and elevation drawing which shows the room floor plan details along with room different sides of elevation drawing and dimension details.
File Type:
DWG
File Size:
169 KB
Category::
Architecture
Sub Category::
Corporate Building
type:
Gold
Uploaded by:
Jiya
View Profile
Download
Add to libary
find Latest
Related
Files