2 d cad drawing office interior layout elevation Auto Cad software
Description
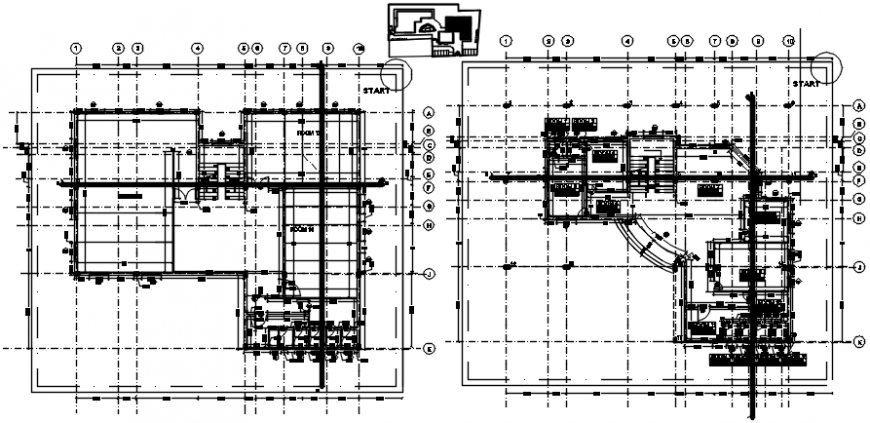
2d cad drawing office interior layout elevation autocad software detailed with plain drawing that includes the process of drawing with other plan comaprision of rooms and allotted with proper direction and including dimensions and mentioned description abouit area been mentioned and been directed with points.
Uploaded by:
Eiz
Luna

