LOGIN
HOME
CATEGORIES
UPLOAD FILE
PRICING
HOUSE PLAN
ABOUT US
CONTACT US
Apartment Home CAD Drawing
Home
Categories
Architecture
Bungalow House Design
Apartment Home CAD Drawing
Uploaded by:
Jiya
View Profile
View Profile
Description
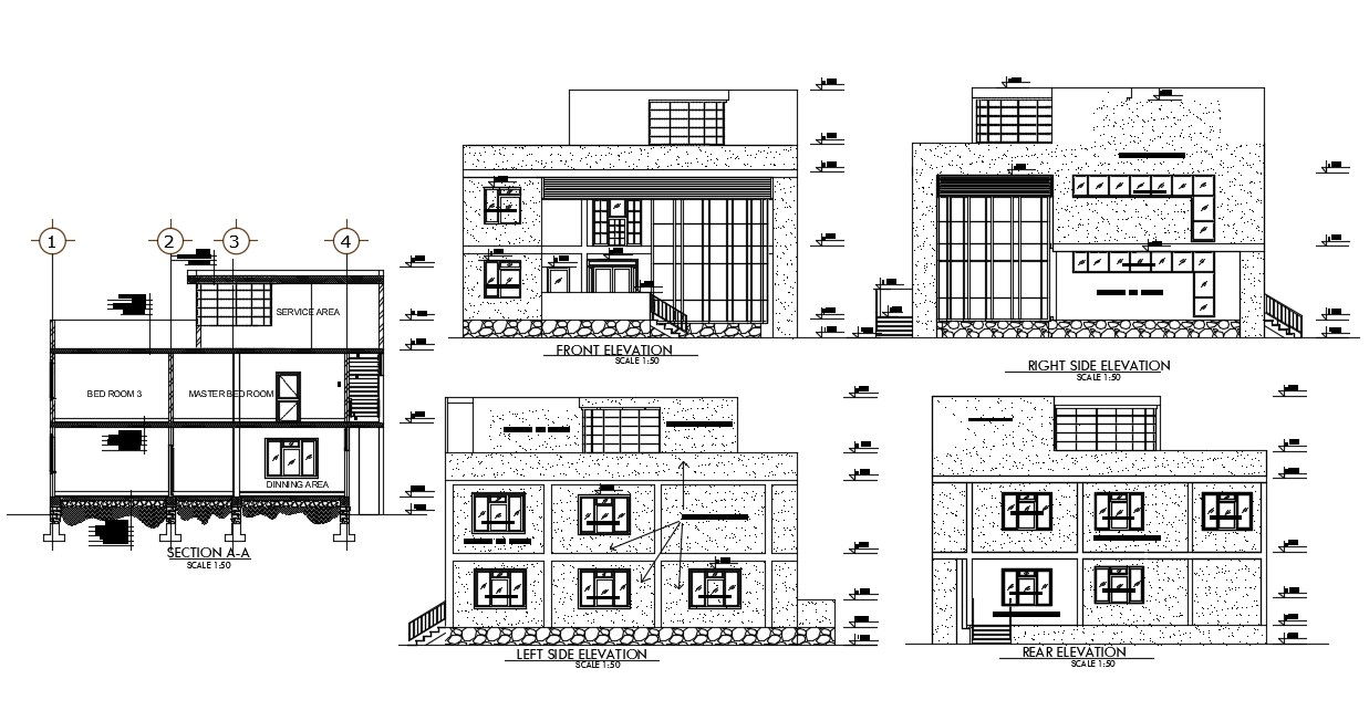
Housing bungalow elevation drawing that shows house different sides of elevation details along with sectional details of the house also presented in drawing.
File Type:
DWG
File Size:
1.1 MB
Category::
Architecture
Sub Category::
Bungalow House Design
type:
Gold
Uploaded by:
Jiya
View Profile
Download
Add to libary
find Latest
Related
Files