LOGIN
HOME
CATEGORIES
UPLOAD FILE
PRICING
HOUSE PLAN
ABOUT US
CONTACT US
Shopping Mall Layout Design CAD File
Home
Categories
Architecture
Mall & Shopping Center
Shopping Mall Layout Design CAD File
Uploaded by:
Jiya
View Profile
View Profile
Description
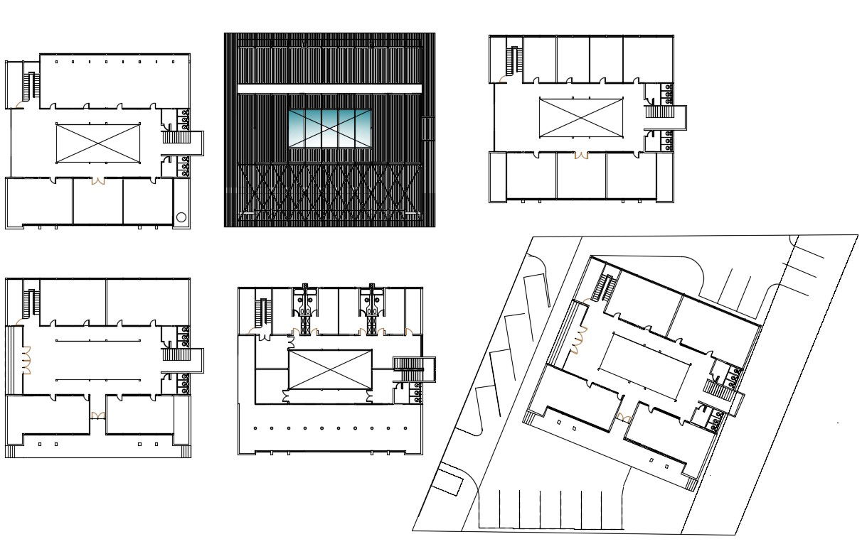
Shopping center Layout CAD plan that shows work plan drawing details of building along with parking space details and staircase floor level details also presented in drawing.
File Type:
DWG
File Size:
1.1 MB
Category::
Architecture
Sub Category::
Mall & Shopping Center
type:
Gold
Uploaded by:
Jiya
View Profile
Download
Add to libary
find Latest
Related
Files