LOGIN
HOME
CATEGORIES
UPLOAD FILE
PRICING
HOUSE PLAN
ABOUT US
CONTACT US
Modern Office Plan Download
Home
Categories
Interior Design
Office Interior
Modern Office Plan Download
Uploaded by:
Jiya
View Profile
View Profile
Description
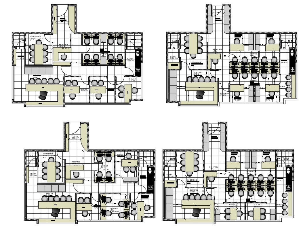
CAD drawing details of office floorplan which shows the furniture plan design in building along with working space area details and dimension hidden line floor level details.
File Type:
DWG
File Size:
2.6 MB
Category::
Interior Design
Sub Category::
Office Interior
type:
Gold
Uploaded by:
Jiya
View Profile
Download
Add to libary
find Latest
Related
Files