LOGIN
HOME
CATEGORIES
UPLOAD FILE
PRICING
HOUSE PLAN
ABOUT US
CONTACT US
Commercial Complex Plan
Home
Categories
Architecture
Corporate Building
Commercial Complex Plan
Uploaded by:
Poonam
View Profile
View Profile
Description
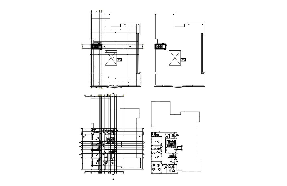
Commercial complex plan with the centerline and furniture layout for two floors,one is floor plan other is terrace plan, with working dimension.
File Type:
DWG
File Size:
9.9 MB
Category::
Architecture
Sub Category::
Corporate Building
type:
Gold
Uploaded by:
Poonam
View Profile
Download
Add to libary
find Latest
Related
Files