Room Furniture layout Flooring Plan Download CAD Drawing
Description
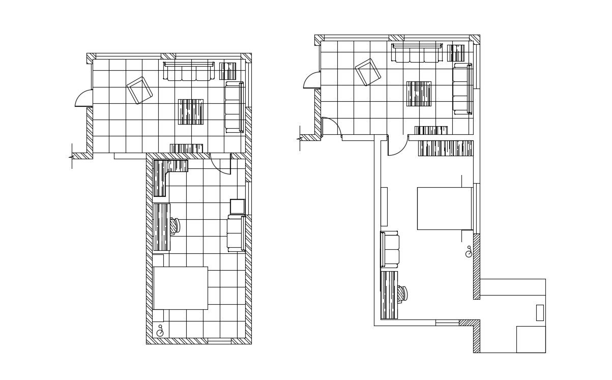
Drawing room and Bedroom Flooring Plan detail CAD drawing that also shows furniture layout details in room download CAD file for free.

Uploaded by:
akansha
ghatge

Uploaded by:
ghatge