Download Bedroom Furniture layout AutoCAD Drawing
Description
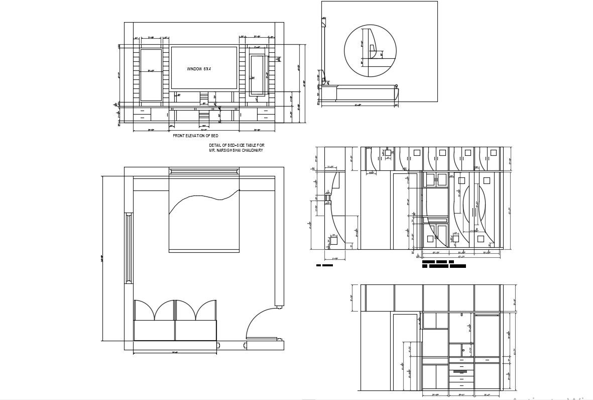
Bedroom design CAD plan and elevation detail Drawing that shows bedroom furniture blocks details along with door window unit details, furniture dimension details, and various other details download the file.

Uploaded by:
akansha
ghatge

