House Construction Plan AutoCAD drawing Free Download
Description
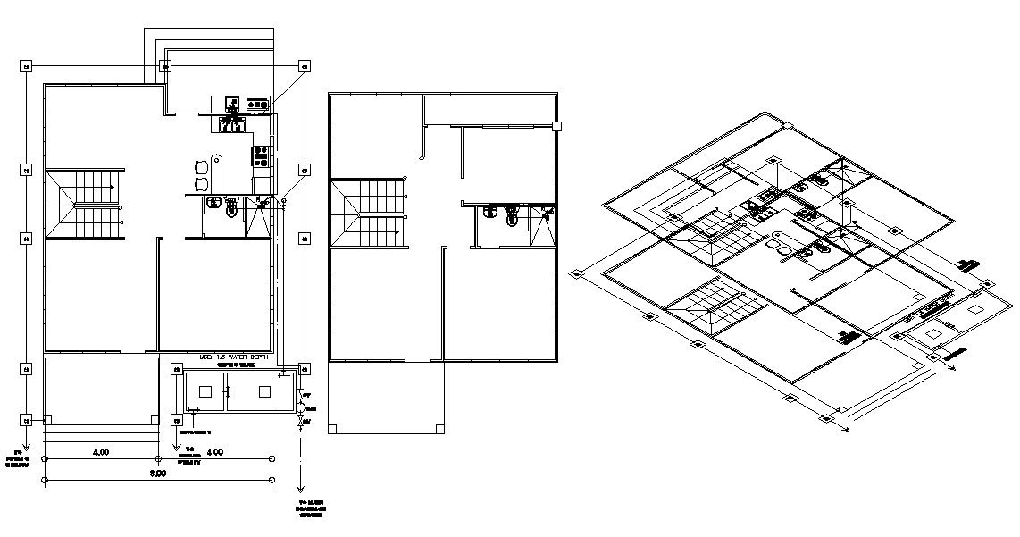
House column design plan that shows building floor level details along with wall designing, house isometric view, details download CAD drawing for free.

Uploaded by:
akansha
ghatge

Uploaded by:
ghatge