Guard House Design AutoCAD drawing
Description
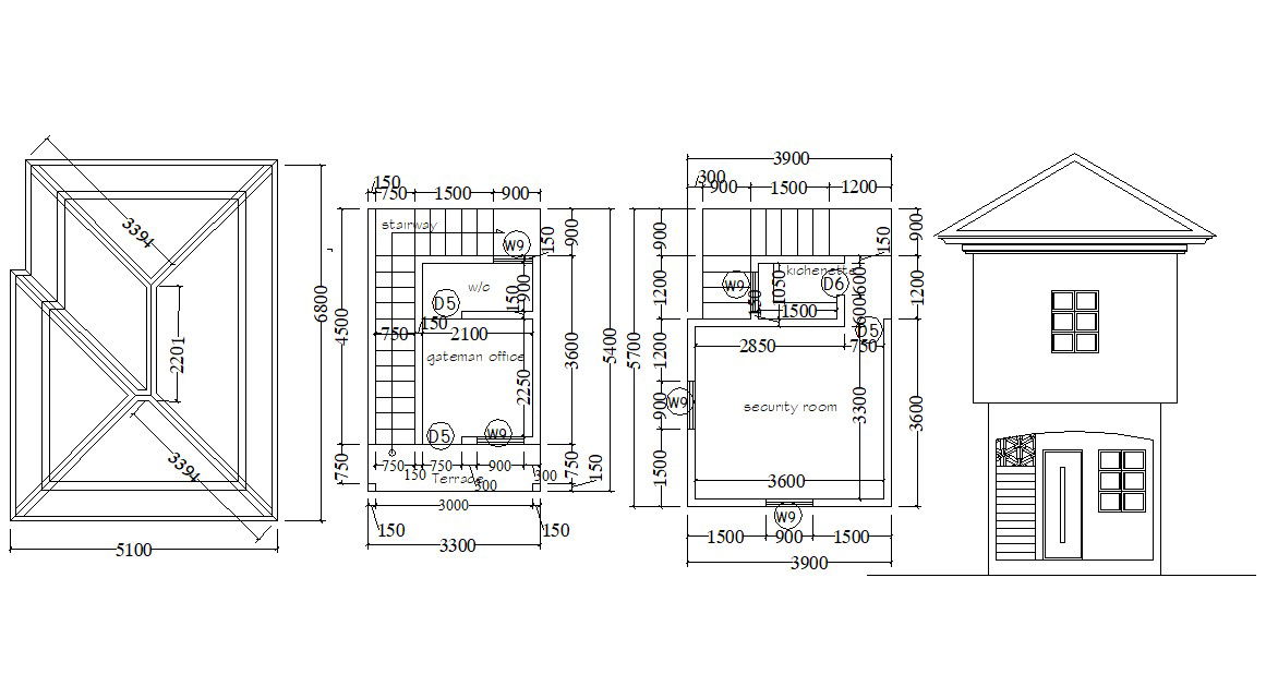
CAD drawing details of guard room plan and front elevation design along with staircase details, dimension working set and various other details download file for free.

Uploaded by:
akansha
ghatge

Uploaded by:
ghatge