Sanitary Toilet Design AutoCAD Drawing
Description
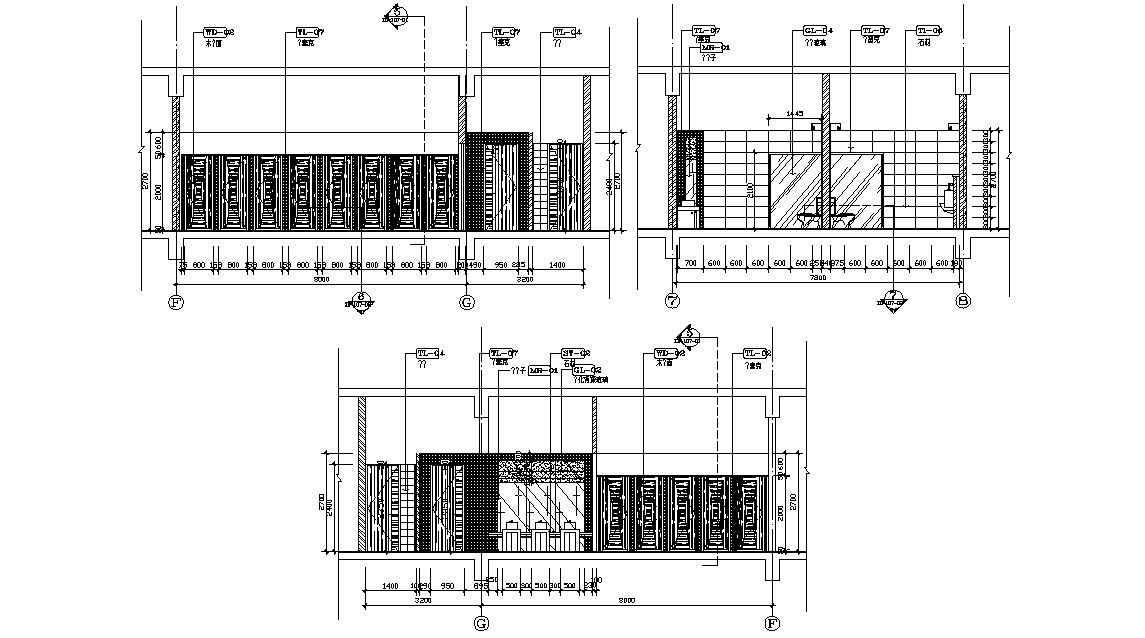
Sectional details of sanitary toilet design that shows sanitary ware details in the toilet along with dimension set, door ventilation blocks and various other units details download file for free.
File Type:
DWG
File Size:
1.6 MB
Category::
Interior Design
Sub Category::
Architectural Bathrooms And Interiors
type:
Free

Uploaded by:
akansha
ghatge

