G+1 Residential Bungalow Section AutoCAD Drawing
Description
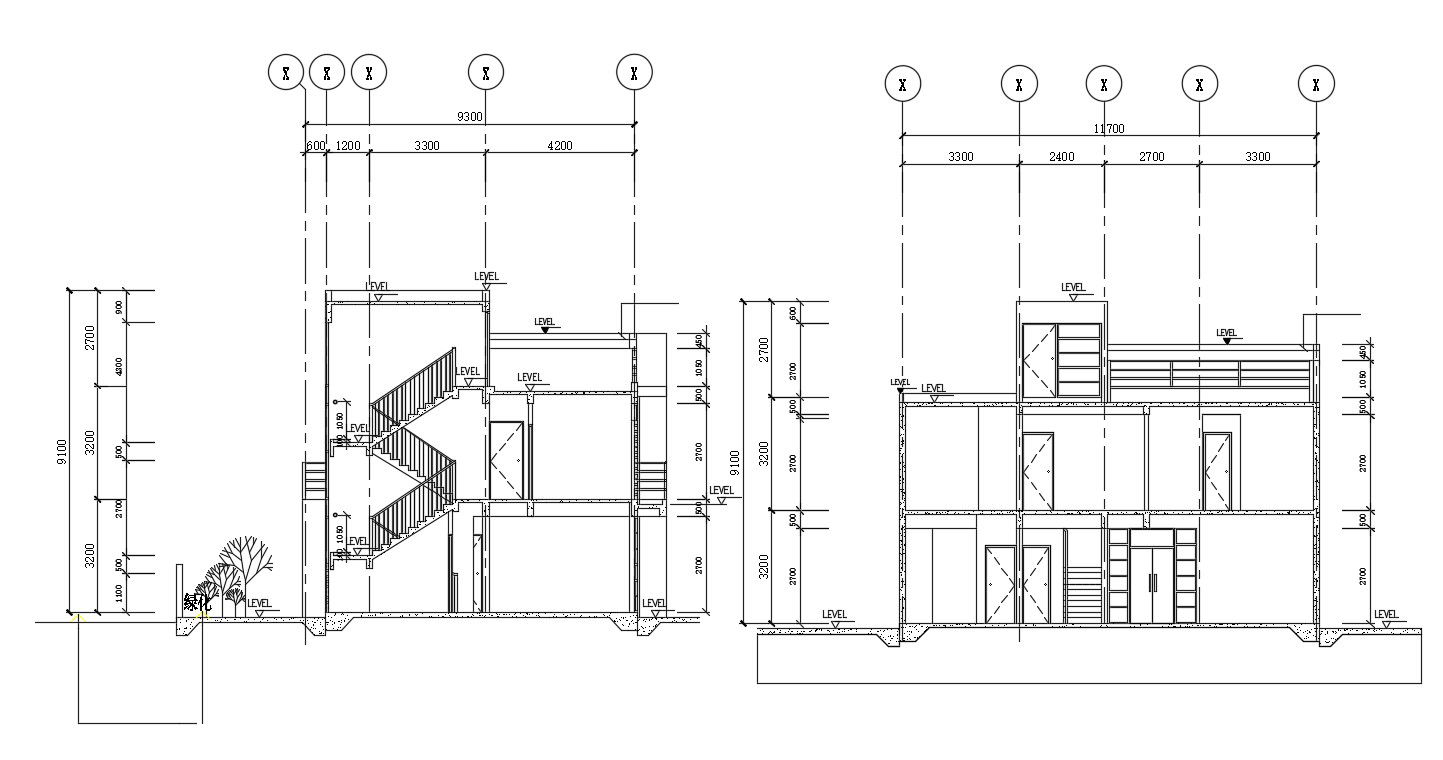
Residential Housing bungalow section drawing that shows house and floor height details along with staircase design details download the file.

Uploaded by:
akansha
ghatge

Uploaded by:
ghatge