LOGIN
HOME
CATEGORIES
UPLOAD FILE
PRICING
HOUSE PLAN
ABOUT US
CONTACT US
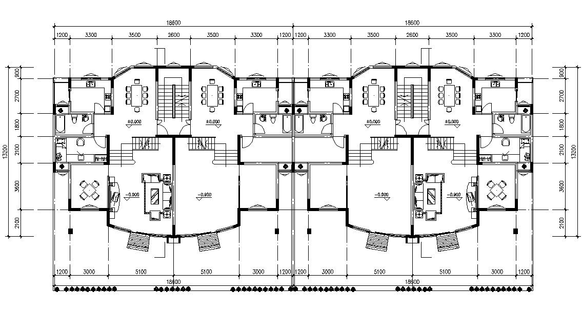
Twin House Ground Floor Plan DWG File
Home
Categories
Architecture
Bungalow House Design
Twin House Ground Floor Plan DWG File
Uploaded by:
Komal
View Profile
View Profile
Description
Twin House Ground Floor Plan DWG File; 2d CAD drawing of House ground floor layout plan with furniture detail shows kitchen, dining area, and living room.
File Type:
DWG
File Size:
211 KB
Category::
Architecture
Sub Category::
Bungalow House Design
type:
Gold
Uploaded by:
Komal
View Profile
Download
Add to libary
find Latest
Related
Files