Apartment Section And Elevation CAD Drawing

Apartment Section And Elevation CAD Drawing
Profile

Uploaded by:

Komal

Description
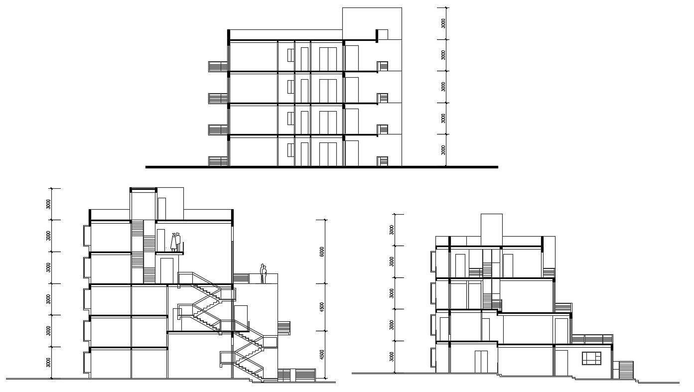
Apartment Section And Elevation CAD Drawing; download free AutoCAD file of apartment building section and elevation design which shows 5 storey building structure design.
Profile

Uploaded by:

Komal

find Latest

Related Files

WhatsApp Chat