LOGIN
HOME
CATEGORIES
UPLOAD FILE
PRICING
HOUSE PLAN
ABOUT US
CONTACT US
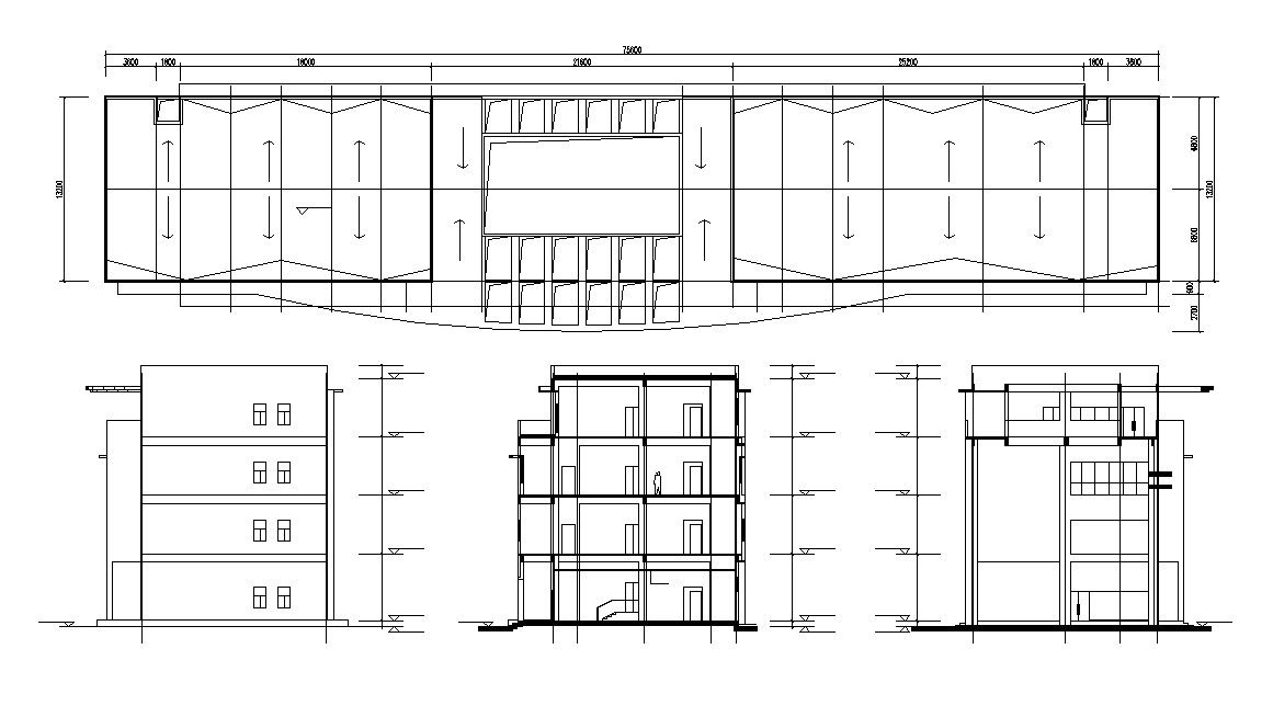
Commercial Building Plan AutoCAD Drawing
Home
Categories
Architecture
Corporate Building
Commercial Building Plan AutoCAD Drawing
Uploaded by:
Poonam
View Profile
View Profile
Description
The commercial building shows the details of the section and side elevation. It also indicates the rainwater, slopes and hidden dimension details.
File Type:
DWG
File Size:
535 KB
Category::
Architecture
Sub Category::
Corporate Building
type:
Gold
Uploaded by:
Poonam
View Profile
Download
Add to libary
find Latest
Related
Files