Inspection opening Design of Hydro Power Plant Structure PDF File
Description
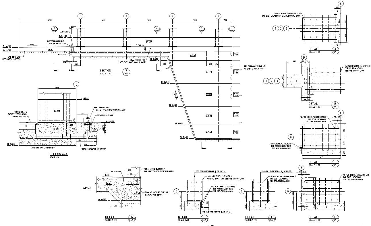
Design of inspection opening chamber for hydroelectric power plant units that shows PVC drain pipe, dimension working set, centerline, RCC work, Duty, longitudinal column, reinforcement details, and various other Structural blocks design download PDF file.

Uploaded by:
akansha
ghatge

