House Plumbing And Drainage Line Layout Plan AutoCAD File
Description
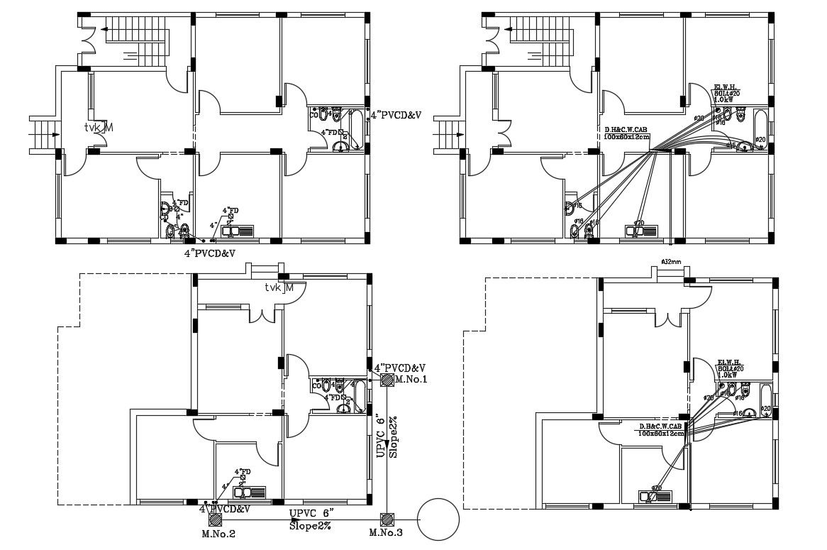
The house plan ground floor and first-floor plan CAD drawing show a drainage water closet line that connects to the chamber box bathroom. also provide a kitchen, bathroom, and toilet drainage line layout plan. download DWG file of house plumbing plan and water closet detail CAD drawing.
File Type:
DWG
File Size:
79 KB
Category::
Dwg Cad Blocks
Sub Category::
Autocad Plumbing Fixture Blocks
type:
Gold
Uploaded by:

