LOGIN
HOME
CATEGORIES
UPLOAD FILE
PRICING
HOUSE PLAN
ABOUT US
CONTACT US
Free Home Building Design CAD File
Home
Categories
Architecture
Bungalow House Design
Free Home Building Design CAD File
Uploaded by:
Komal
View Profile
View Profile
Description
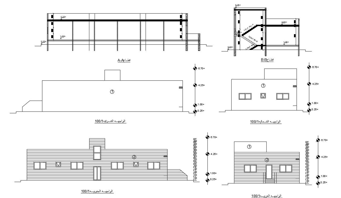
Download free DWG file of single storey house building elevation design with dimension detail and section drawing which shows RCC floor slab design.
File Type:
DWG
File Size:
66 KB
Category::
Architecture
Sub Category::
Bungalow House Design
type:
Free
Uploaded by:
Komal
View Profile
Download
Add to libary
find Latest
Related
Files