LOGIN
HOME
CATEGORIES
UPLOAD FILE
PRICING
HOUSE PLAN
ABOUT US
CONTACT US
Floor Plan With Electrical And Plumbing Layout Plan
Home
Categories
Architecture
Bungalow House Design
Floor Plan With Electrical And Plumbing Layout Plan
Uploaded by:
Poonam
View Profile
View Profile
Description
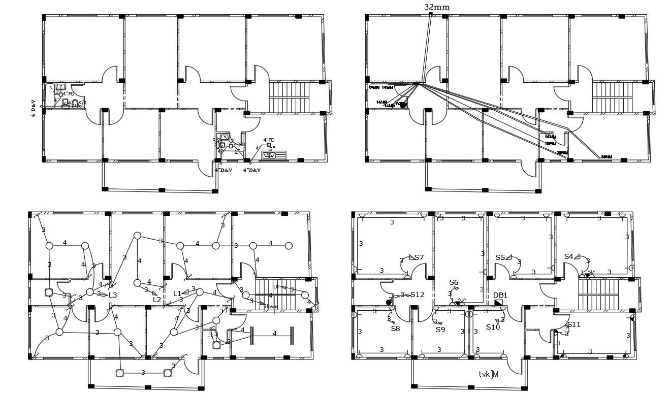
2d AutoCAD drawing plumbing layout plan 32 mm pipe and electrical layout plan include ceiling point, plug point, and switchboard. download the AutoCAD file.
File Type:
DWG
File Size:
90 KB
Category::
Architecture
Sub Category::
Bungalow House Design
type:
Free
Uploaded by:
Poonam
View Profile
Download
Add to libary
find Latest
Related
Files