Architecture House Plan Design AutoCAD Drawing
Description
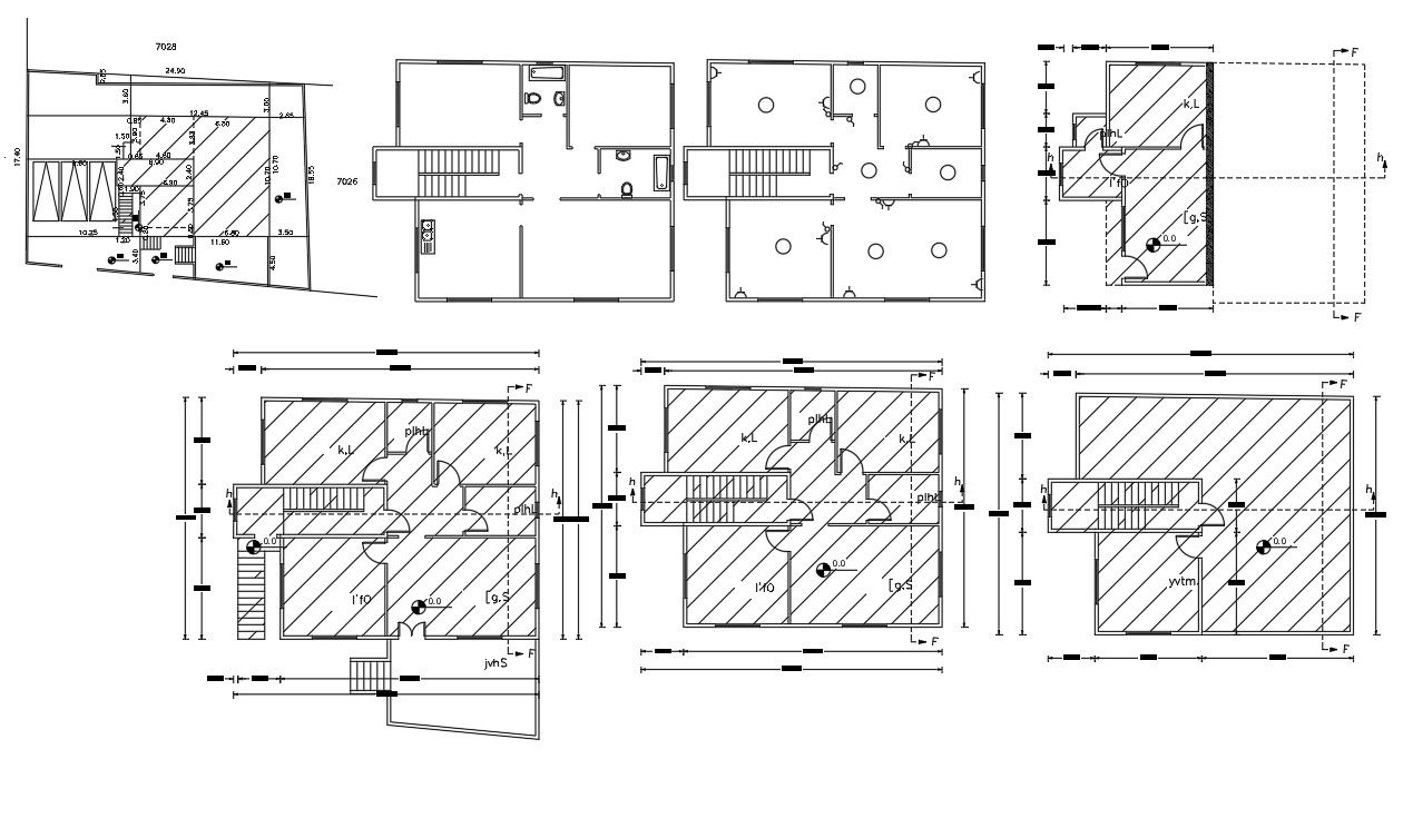
Architecture house plan design AutoCAD drawing includes the layout contains spacious bedrooms, living, kitchen and dining rooms. The ground floor has a parking space to accommodate 3 big car and compound wall design. The Bedroom in the plan has an attached toilet and a common toilet. download AutoCAD house plan design DWG file.
Uploaded by:

