Residential House Floor Plan CAD File

Residential House Floor Plan CAD File
Profile

Uploaded by:

Poonam

Description
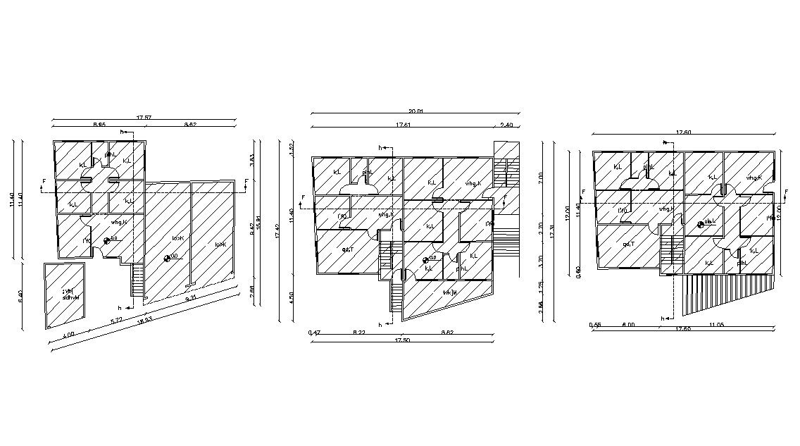
The architecture drawing floor plan provide bedrooms, toilets also has dimension details, section line. the floor plan size 17.50 X 17.30. the drawing download AutoCAD format.
Profile

Uploaded by:

Poonam

find Latest

Related Files

WhatsApp Chat