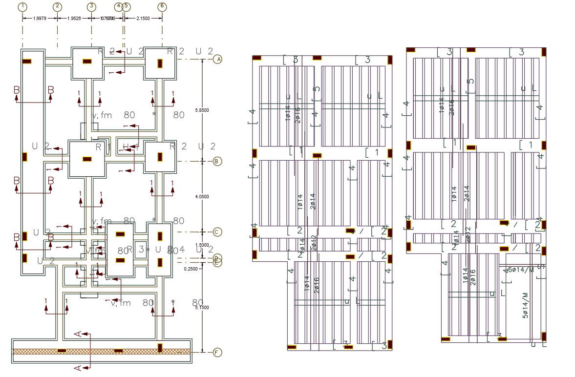
25 By 55 Feet House Column Footing And Slab Bar Design
Description
140 square yard plot size for house plan construction working plan that shows foundation plan and reinforcement detailing of a slab bar done based on its support conditions. download 25 by 55 feet construction house plan design DWG file.
Uploaded by:

