Elevator design
Description
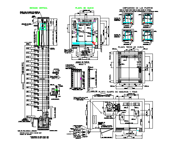
Elevator design This elevator design in all cutting part section detail & construction of stair detail.
File Type:
DWG
File Size:
174 KB
Category::
Mechanical and Machinery
Sub Category::
Elevator Details
type:
Gold

Uploaded by:
Jafania
Waxy

