LOGIN
HOME
CATEGORIES
UPLOAD FILE
PRICING
HOUSE PLAN
ABOUT US
CONTACT US
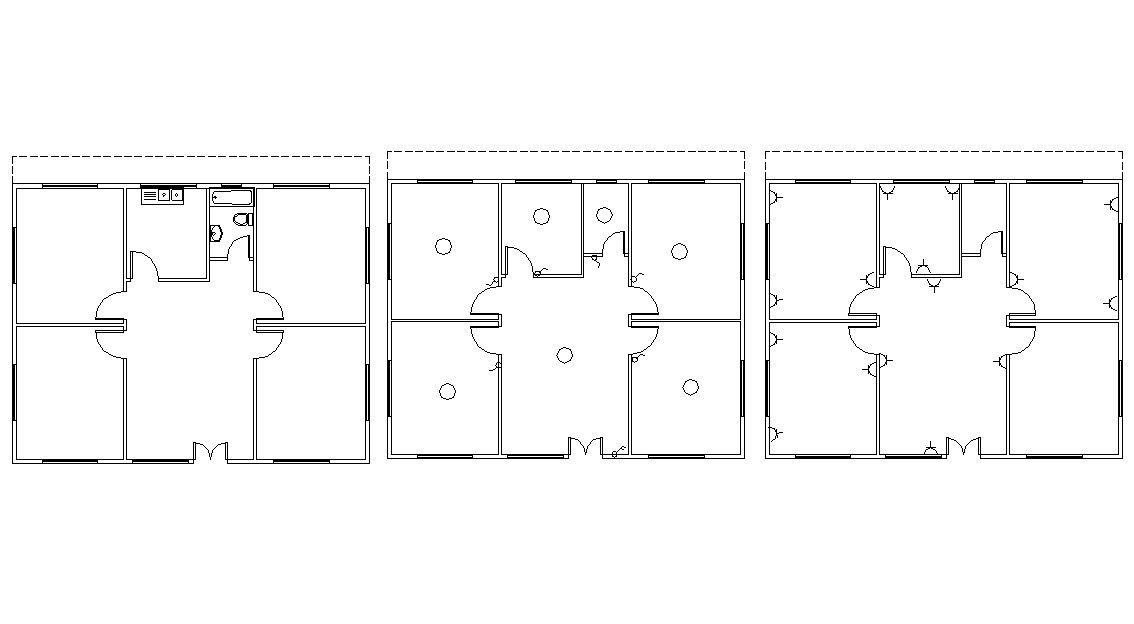
Floor Plan And Electrical Layout Drawing
Home
Categories
Electrical
Light Fixtures & Fittings
Floor Plan And Electrical Layout Drawing
Uploaded by:
Poonam
View Profile
View Profile
Description
The drawing bungalow house floor and electrical layout provide windows, door, switchboards, plug point and other more details. download AutoCAD format.
File Type:
DWG
File Size:
84 KB
Category::
Electrical
Sub Category::
Light Fixtures & Fittings
type:
Gold
Uploaded by:
Poonam
View Profile
Download
Add to libary
find Latest
Related
Files