Lighting Fixture Installation In Wall And Slab Drawing DWG File
Description
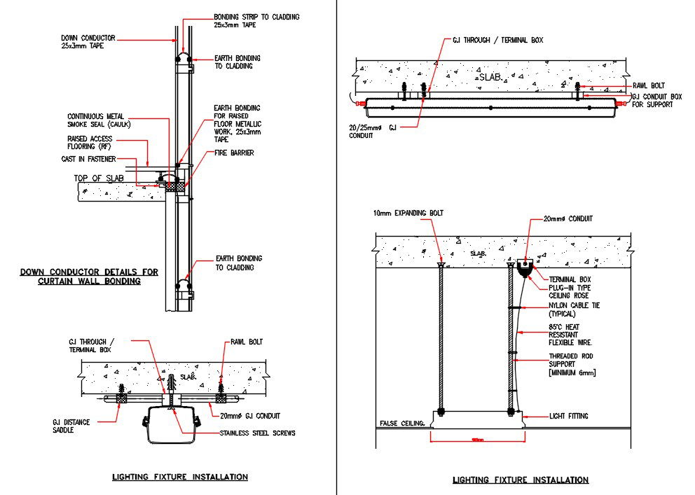
The Lighting wire fixture installation in wall and slab drawing shows detail of down conductor details for curtain wall bonding, earth bonding for raised floor metallic work, 25x3mm tape,fire barrier, terminal box with plug-in type ceiling rose. it shall be the contractor's responsibility to ensure the complete co-ordination of all services. The lamps and luminaries shall be supplied and installed under this contract as per light fitting specification. for location of emergency and exit signs refer to civil deffence drawings. download free light fixing detail DWG file.
Uploaded by:

