Wall Insulation Electrical Emergency Wiring Section Drawing DWG File
Description
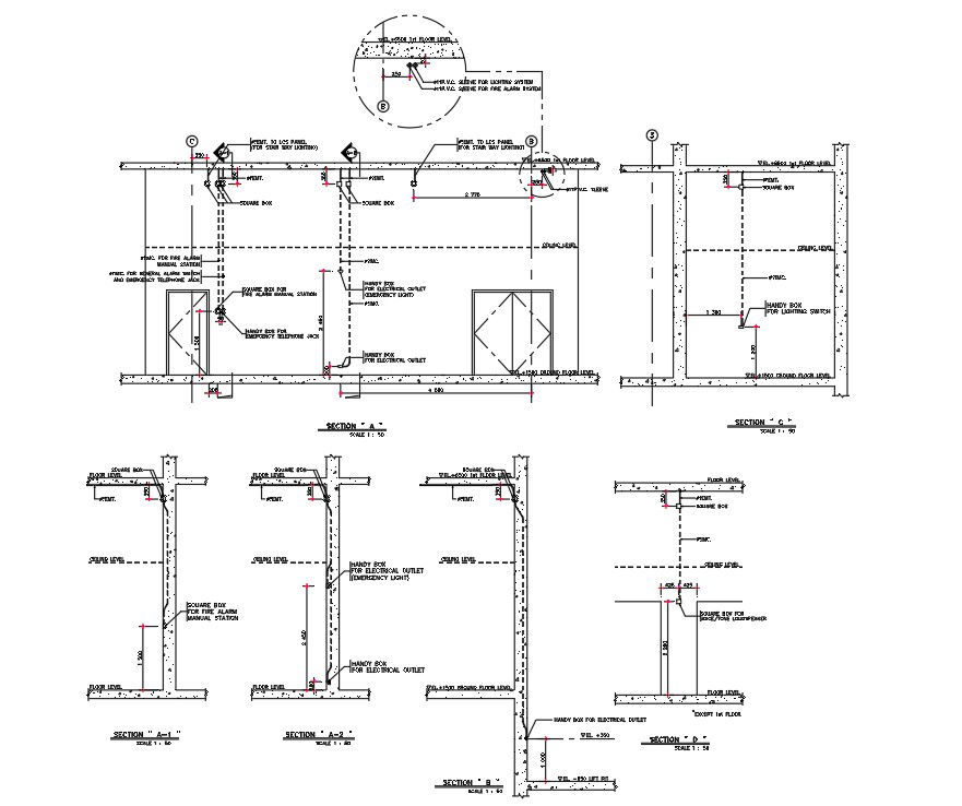
The wall insulation electrical emergency pipe line wiring design which consist fire alarm, telephone jack, handy box for electrical outlet (emergency light),for stair way lighting, sleeve for lighting system and fire alarm system. download wall insulation electrical wiring fixture design DWG file.Thank you for downloading the AutoCAD drawing DWG file and other CAD program files from our cadbull website.
Uploaded by:

