Elevator section of the hotel building details are given in the autocad dwg drawing file. Download the Autocad DWG drawing file.
Description
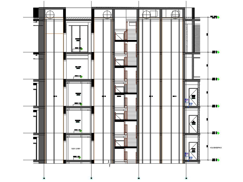
Elevator section of the hotel building details are given in the autocad dwg drawing file. This drawing is given from level 7 to roof level. Service toilets is provided for house keeping. Ice machine, elevator lobby and stairs are mentioned in this diagram. Thank you for downloading the autocad 2D DWG drawing file and other CAD program files from our cadbull website.
Uploaded by:

