RCP Pipe Wall Installation Section Drawing DWG File
Description
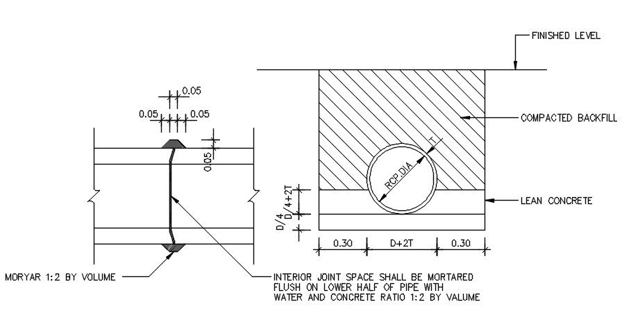
The AutoCAD drawing of front and side view section drawing of RCP pipe instillation detail which consist interior joint space shall be mortared flush on lower half of pipe with water and concrete ratio 1:2 by volume. also has lean concrete, compacted back fill and finished level. Thank you for downloading the AutoCAD file and other CAD program from our website.
File Type:
DWG
File Size:
234 KB
Category::
Dwg Cad Blocks
Sub Category::
Autocad Plumbing Fixture Blocks
type:
Gold
Uploaded by:

