40X5 Meter House Layout Plan With Furniture CAD Drawing Download DWG File
Description
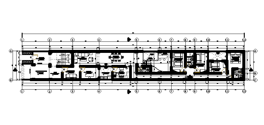
40X5 meter plot size for residence house layout plan CAD drawing which includes 4 bedrooms, kitchen, drawing room, living room and staircase detail. also has additional drawing such as a furniture design, column layout and center line plan detail. Thank you for downloading the AutoCAD file and other CAD program from our website.
Uploaded by:

