66x45m supermarket plan is given in this AutoCAD model. This is single story supermarket building.Download now.
Description
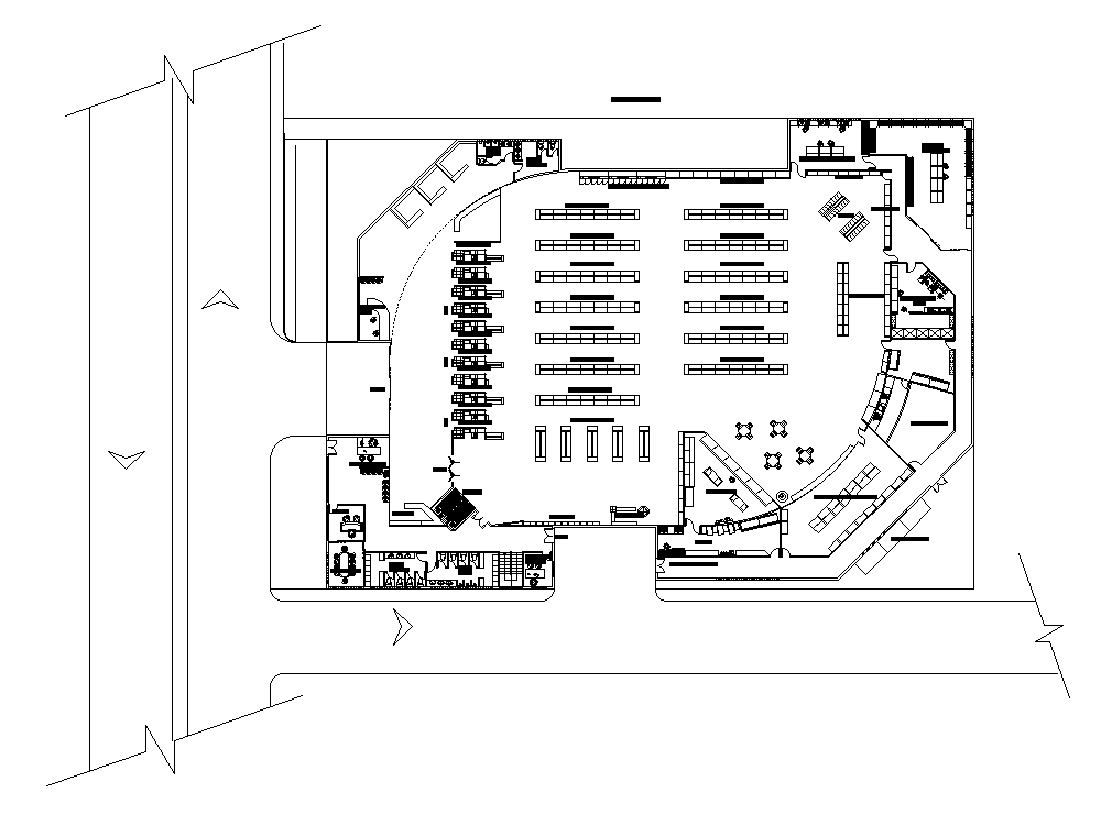
66x45m supermarket plan is given in this AutoCAD model. This is single story supermarket building. Office, conference room, female toilet, gent’s toilet, product control, package area, trolley location, administrative office, cash counter, product display, milk product room, grocery warehouse, bakery shops, and cleanings tools are available. For more details download the AutoCAD drawing file. Thank you for downloading the AutoCAD drawing file and other CAD program files from our website.
Uploaded by:
