35x18m hospital ground floor plan is given in this AutoCAD drawing model. Download now.
Description
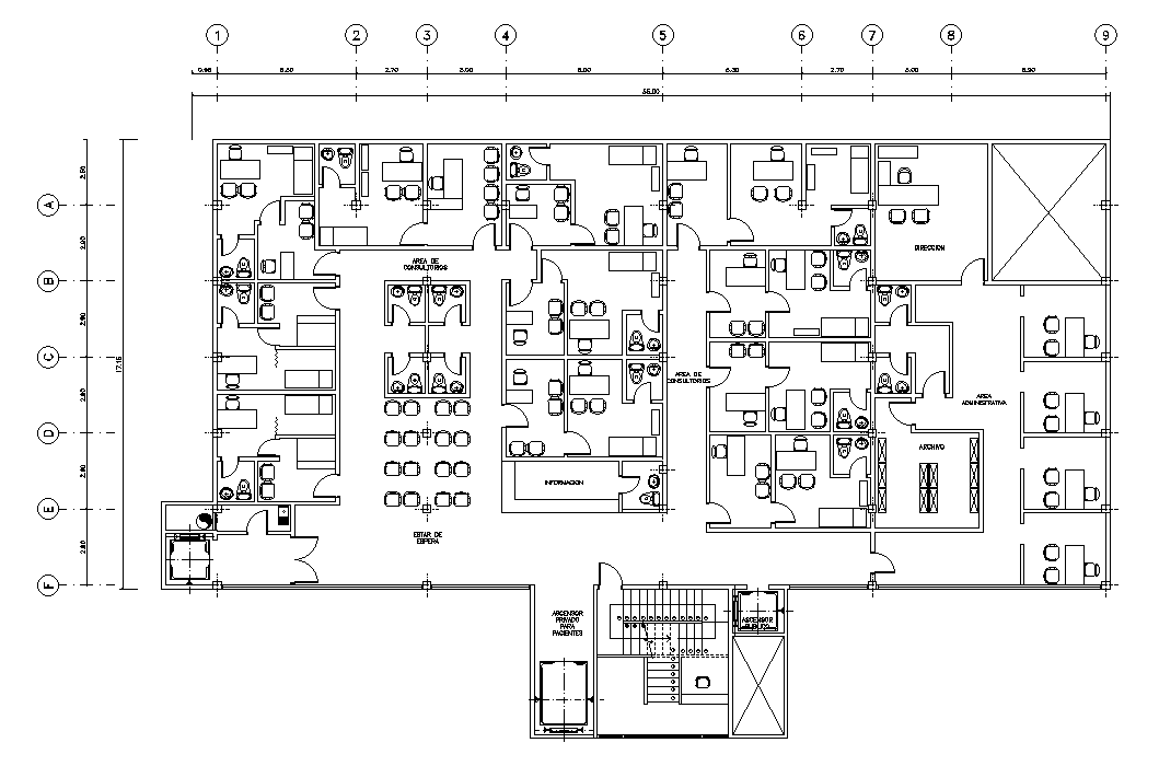
35x18m hospital ground floor plan is given in this AutoCAD drawing model. This is G+ 2 hospital building. Doctor’s consulting room with patient’s bed for each department, gent’s toilet, ladies toilet, reception, waiting room, information area, and emergency rooms are available. For more details download the AutoCAD drawing file. Thank you for downloading the AutoCAD drawing file and other CAD program files from our website.
Uploaded by:
