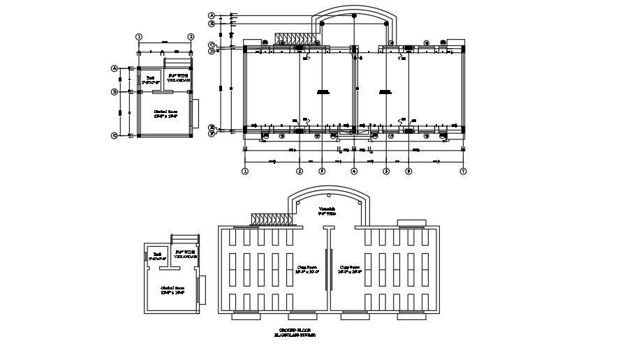
Furniture layout of classroom.
Description
This Architectural Drawing is of Furniture layout of classroom. Although not a part of constructional or architectural work, a furniture layout drawing is an integral part of interior design drawings. These floor plan layouts show the schematic top view of furniture, and its location, size, and shape. A typical classroom includes desks, chairs, white boards or greenboards for writing on and usually a computer stand as well. The teacher's table with chair is also present in addition to cupboard space that can be used by teachers when they need additional storage room next to their desk area. For more details and information download the drawing file.
File Type:
DWG
File Size:
537 KB
Category::
Interior Design
Sub Category::
Education Interiors Design Projects
type:
Gold

Uploaded by:
Eiz
Luna
