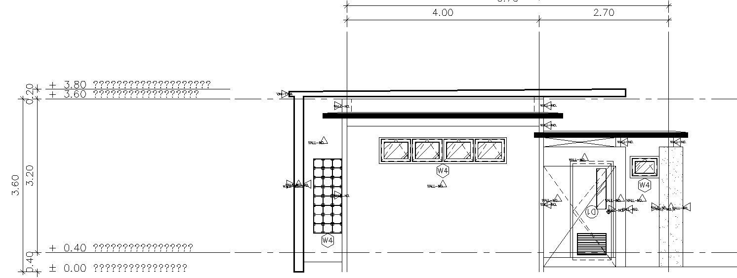
Backside elevation of ground floor plan in detail AutoCAD drawing, dwg file, CAD file
Description
This architectural drawing is Backside elevation of ground floor plan in detail AutoCAD drawing, dwg file, CAD file. In this drawing there were size of the section is 6.70x3.60m is given. There were ventilator section, window section, door section etc. are given with details. For more details and information download the drawing file.
Uploaded by:
viddhi
chajjed

