classroom dean room laboratories meeting room details and elevation dwg autocad drawing .
Description
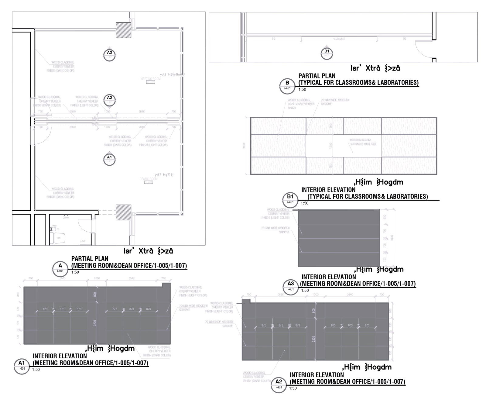
Discover our comprehensive AutoCAD DWG drawing showcasing detailed plans and elevations for classrooms, dean rooms, laboratories, and meeting rooms. Delve into the intricacies of each space with partial plans offering insights into layout arrangements, furniture placements, and spatial organization. Explore interior elevations providing a closer look at the design elements, including wall treatments, door and window placements, and room dimensions. From the functional layout of classrooms to the sophisticated ambiance of dean rooms and meeting spaces, our drawing encapsulates the essence of each environment. Whether you're an architect, designer, or project manager, this drawing provides valuable resources for conceptualizing, planning, and executing educational and administrative spaces. Elevate your projects with our meticulously crafted AutoCAD drawing, designed to streamline your design process and enhance the overall quality of your work.

Uploaded by:
Liam
White

