3087 Sq.Ft. Two-Storey House Floor Plan in DWG Format

3087 Sq.Ft. Two-Storey House Floor Plan in DWG Format
Profile

Uploaded by:

K.H.J

Jani

Description

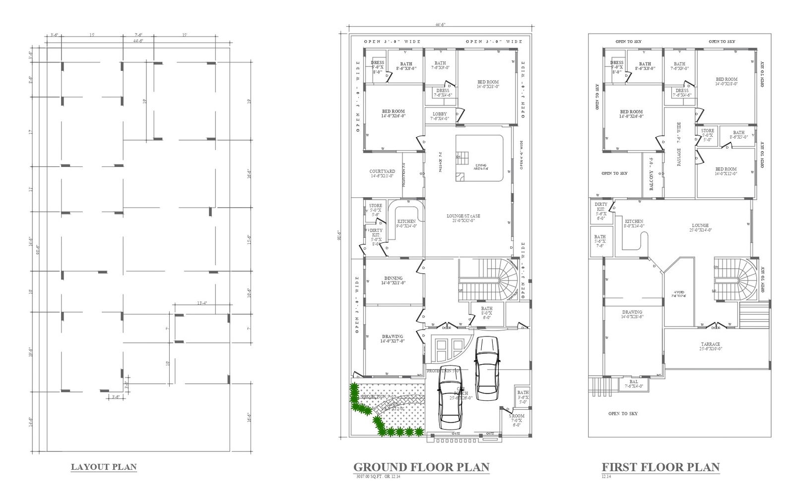
Explore the intricacies of a charming 2-storey, 3087 sq. ft. residential house through our meticulously crafted AutoCAD files. Dive into the detailed floor plan, highlighting essential elements such as the spacious car parking area that ensures convenience at your doorstep. Wander through the well-designed drawing room, each bath adorned with thoughtful details for your comfort. The dining area beckons gatherings, seamlessly connected to the kitchen area where culinary magic unfolds. The lounge area exudes warmth, while the living area offers a cozy retreat. Discover the nuanced bedroom details, capturing both style and functionality. Unveil the essence of a dream home with these AutoCAD files, showcasing a cad drawing that encapsulates the perfect blend of luxury and practicality in every square foot of this residential haven.

 

Profile

Uploaded by:

K.H.J

Jani

find Latest

Related Files

WhatsApp Chat