Detail for welding plug in all low waves DWG autoCAD drawing
Description
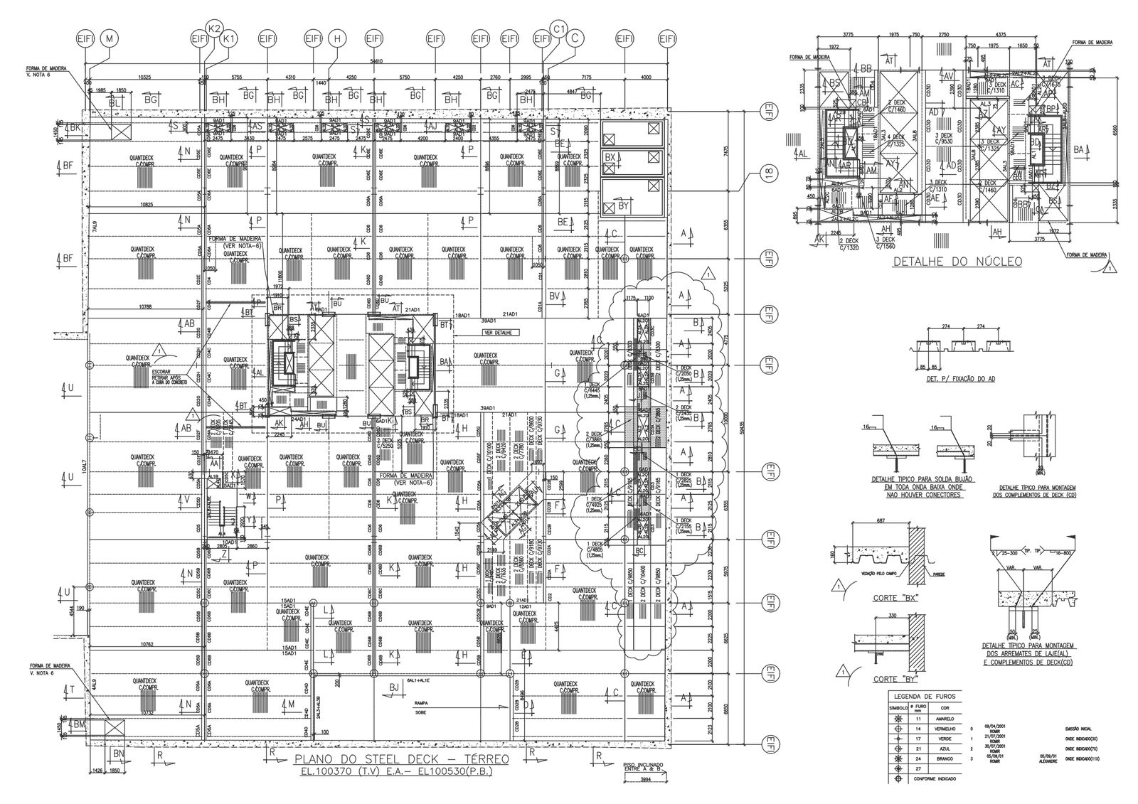
This detailed AutoCAD drawing showcases the precise welding plug for all low waves, providing essential construction insight. The drawing emphasizes the strategic placement and function of welding plugs within the structural framework. It offers a comprehensive view of how welding plugs integrate into the low wave configuration, ensuring durability and strength in the steel deck assembly. Key features highlighted include steel deck details, cross-section illustrations, and specific elements of the deck roll framing. The drawing aids in understanding wall framing, pillar intricacies, flooring specifics, and elevation considerations. This detailed depiction is essential for space planning, floor layout, column implementation, and facade design, benefiting architectural and construction professionals seeking precise documentation for concrete construction and reinforcement. Explore this CAD file for comprehensive insights into construction and design intricacies, enabling efficient project planning and execution.
File Type:
DWG
File Size:
384 KB
Category::
Electrical
Sub Category::
Electrical Automation Systems
type:
Gold
Uploaded by:

