99ft x 33ft Hospital and House Layout Plan Design – AutoCAD DWG Download File
Description
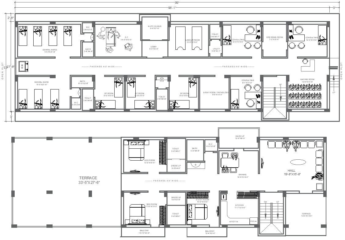
Explore the intricate design of a 99ft x 33ft hospital and house layout plan, presented in an AutoCAD DWG file. This comprehensive plan includes essential facilities such as a waiting room, consulting area, dressing room, X-ray room, and pathology section, ensuring efficient healthcare delivery. The layout also features a specialized room (SP), a labor room, and an operation theater (OT) for advanced medical procedures. In addition to the hospital amenities, the plan encompasses residential spaces, including a bedroom, study room, and dining area, along with a kitchen and balcony. The well-thought-out design facilitates seamless integration of medical and living spaces, making it ideal for healthcare professionals.

Uploaded by:
Eiz
Luna

