LOGIN
HOME
CATEGORIES
UPLOAD FILE
PRICING
HOUSE PLAN
ABOUT US
CONTACT US
Plan of Hotel dwg file
Home
Categories
Architecture
Hotels and Restaurants
Plan of Hotel dwg file
Uploaded by:
Eiz
Luna
View Profile
View Profile
Description
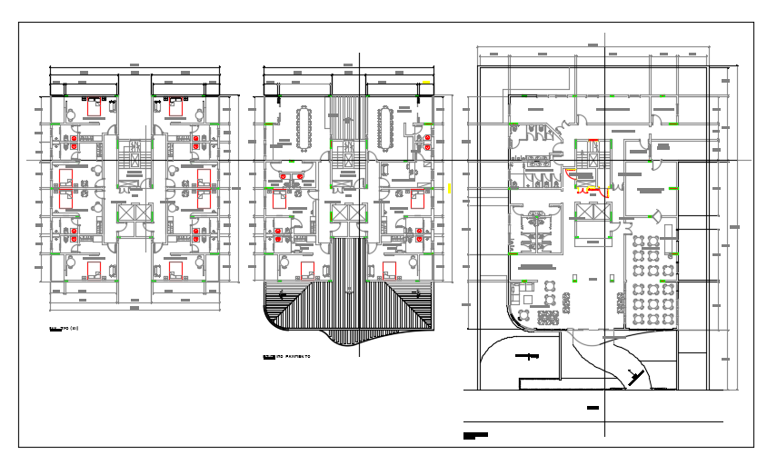
Plan of Hotel interior plan details of each room with pLacing furniture like bed sitting area table chair lift area windows bathroom with all measurements.
File Type:
DWG
File Size:
14.9 MB
Category::
Architecture
Sub Category::
Hotels and Restaurants
type:
Gold
Uploaded by:
Eiz
Luna
View Profile
Download
Add to libary
find Latest
Related
Files